Dacor Panel Ready French Door Refrigerator
Faucet

Blum Legra Drawer System
This modern penthouse renovation in Marina del Rey was recently commissioned to transform an ocean-view residence into a refined, contemporary home defined by warmth, precision, and material integrity. The design centers on a calm, cohesive palette of cashmere, earth tones, and soft neutrals, creating a timeless backdrop that complements the coastal setting while maintaining a distinctly modern edge.
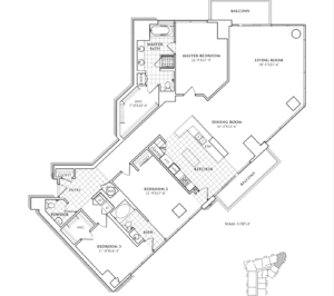
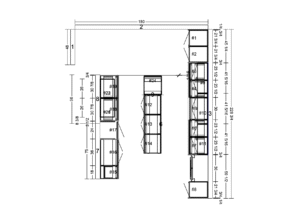
The kitchen serves as the architectural anchor of the home, featuring custom high-gloss lacquer cabinetry, Taj Mahal quartzite countertops, and a fully integrated modern lighting system that extends across the island and throughout the residence. Every detail—from cabinetry reveals to lighting temperature—was carefully considered to enhance both function and visual continuity. Engineered wide-plank flooring in subtle, natural tones runs throughout the main living spaces, reinforcing the penthouse’s clean, uninterrupted flow.
Bathrooms were finished with premium Porcelanosa tile imported from Spain, paired with custom millwork and modern fixtures for a spa-like experience. Throughout the home, bespoke entertainment and storage cabinetry was designed and fabricated to integrate seamlessly into the architecture, maximizing storage while maintaining a minimal aesthetic. The result is a luxury Marina del Rey penthouse renovation that balances modern design, high-end materials, and meticulous craftsmanship—tailored for elevated coastal living.
We transform ordinary rooms into extraordinary spaces.
Experience the LA Design Build Effect yourself by scrolling over the picture for Before & After pictures.


































